 support@apartrentus.com
support@apartrentus.com
		
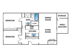
Bedrooms: 2Bathrooms: 1Square Feet: 1169Date Available: 2022-10-11Address: 890 Quail Lake Cir
Unit# 814-102WOW! APPLY NOW AND RECEIVE A FREE GARAGE FOR THE TERM OF YOUR LEASE! Stop by and Take A Tour TODAY! tel:  
 Website: www.bonterralakesideapts.com Office Hours: Monday - Friday: 10AM-6PM Saturday: 10AM-5PM Sunday: Closed Pet Friendly - All breeds allowed with the exception of Pit Bulls. This Apartment Features: Detached One-Car Garage w/ Remote Modern Kitchen w/ All Appliances Large Private Patio With Scenic Views Full Modern Finishes Throughout Large Kitchen Pantry Washer / Dryer in Unit Wood-Burning Fireplace Community Description: Perched atop Quail Lake with its park, bike and walking paths, and minutes from the Broadmoor Hotel and Fort Carson, Bonterra Lakeside Apartments offers the essentials for easy convenient living. Under the vast Colorado sky, residents can take in the fullness of nature on the tree shaded grounds or the wealth of outdoor abundance that includes Pikes Peak, Garden of the Gods, more than 12 golf courses, over a hundred parks and playgrounds, and numerous national monuments. Each of our one, two, and three bedroom homes have a garage assigned to them and offer central air, fully appointed kitchens, extra storage, and oversized patios or balconies. Please call for an appointment today. Community Amenities: 24-Hour Fitness Center 24-Hour Emergency Maintenance Online Bill Pay Seasonal Heated Pool Basketball Court Detached Garages Trail Access to Quail Lake All Apartment Homes Feature: Detached One-Car Garage w/ Remote Washer / Dryer in every Unit Wood-Burning Fireplace Private Patio / Balcony Large Bedroom(s) Spacious Closets Full Kitchen with Dishwasher Garbage Disposal Central A/C Attached Storage 
All prices subject to change. Professionally managed by CPM.
Apartment Features:
Updated Kitchen
Full Appliance Package
Refrigerator
Dishwasher
Disposal
Updated Flooring
Large Closets
Washer/Dryer
Central Heating and Cooling System
Patio/Balcony
Extra Storage
Community Features:
Pantry
Custom Cabinetry
Tile Backsplash
Separate Dining Area
Dishwasher
Microwave
Refrigerator with Ice Maker
Large Closet
Air Conditioning
Carpeted
Fireplace
In-Unit Laundry
Spacious Floorplans
Views
High-Speed Internet Access
Window Coverings
Cable Ready
Basketball Court
Fitness Center
Pet Friendly
Sundeck and Lounge Area
Dog Park
Recycling
Swimming Pool
Business Center
Clubhouse
Copy and Fax Services
Fire Pit
Jogging Trail
Pool
Garage
Trail Access
On-Line Bill Pay
BBQ/Picnic Area
Billiards Table
On-Site Maintenance
Availability 24 Hours
High Speed Internet
  
For more information, visit us at: https://coughlinliving.com/osmrbrfc/bonterra-lakeside
© Copyright 2025 APART RENT US Apartments.